Kasetonowe - Klimakonwektory - Cooper & Hunter

Kasetonowe

Pilot

Klimakonwektory kasetonowe serii K2 to urządzenia uniwersalne stosowane zarówno do pomieszczeń biurowych, pokoi hotelowych, sklepów jak i restauracji. Dzięki łatwemu zabudowaniu w przestrzeni sufitu podwieszanego oraz estetycznemu panelowi idealnie się one komponują praktycznie z każdym stylem.  Szeroki zakres wydajności nominalnej chłodzenia od 3,0 do 12,9 kW sprawia, że mogą one obsługiwać zarówno niewielkie jak i kilkudziesięciometrowe lokale. Urządzenie wyposażone jest w standardzie w 4 kierunkowy nawiew powietrza, dzięki czemu rozpływ powietrza w pomieszczeniu jest bardzo komfortowy. Klimakonwektor w standardzie sterowany pilotem bezprzewodowym między innymi z możliwością regulacji biegów wentylatora oraz żaluzji kierunkowych. Dodatkowo urządzenia posiada w standardzie pompkę skroplin.

Konstrukcja 2-rurowa
Zmywalny filtr wstępny
Bezprzewodowy pilot R05/BGE w standardzie
Wielobiegowy silnik wentylatora
Czterokierunkowy nawiew
Szeroki zakres wydajności
Obsługa zewnętrznego zaworu 3-drogowego
Wbudowana pompka skroplin
Poznaj cechy i funkcje
Łatwa konserwacja

Konstrukcja urządzenia ułatwiająca czyszczenie i serwis.

Kompaktowa konstrukcja

Urządzenie o niewielkich wymiarach ułatwiających transport i montaż.

Konstrukcja 2-rurowa

Urządzenie w układzie 2-rurowym.

Wbudowana pompka skroplin

Urządzenie wyposażone w pompkę skroplin ułatwiającą odprowadzenie kondensatu.

Auto restart

Uruchomienie urządzenia z zapamiętanymi nastawami po zaniku zasilania.

Autodiagnoza

Automatyczne wykrywanie usterek oraz komunikowanie błędów odpowiednimi kodami. 

Start przy obniżonym napięciu

Bezpieczne uruchomienie urządzenia przy obniżonym napięciu zasilania.

Zabezpieczenia pracy

Urządzenie wyposażone w funkcje i technologie gwarantujące niezawodność działania oraz zabezpieczające podzespoły.

Zmywalny filtr powietrza

Wstępny siatkowy filtr powietrza łatwy w czyszczeniu. 

Funkcja gorącego startu

Uruchomienie nawiewu w trybie ogrzewania dopiero po wstępnym wygrzaniu wymiennika ciepła.

Tryb cichej pracy

Możliwość pracy urządzenia z obniżonym poziomem ciśnienia akustycznego.

Kilka prędkości wentylatora

Możliwość regulowania biegów wentylatora oraz intensywności nawiewu powietrza.

Tryb Auto

Tryb automatycznej pracy urządzenia.

Timer 24

Możliwość zaprogramowania pracy urządzenia (ON/OFF) w zakresie doby.

Sygnał pozwolenia na pracę (Opcja)

Możliwość opcjonalnego sterowania urządzeniem przez zewnętrzny sygnał pozwolenia na pracę (np. karta hotelowa, styk okienny).

Blokada sterownika

Możliwość blokady klawiatury sterownika (pilota).

Sterowanie pilotem

Urządzenie wyposażone w standardzie w pilot bezprzewodowy

Cennik
Nazwa wariantu Kolor Cena (Netto)
CH-FC030K2 + PANEL T-MBQ4-03B1 Biały 2 750,00 zł
CH-FC040K2 + PANEL T-MBQ4-03B1 Biały 2 800,00 zł
CH-FC050K2 + PANEL T-MBQ4-03B1 Biały 3 000,00 zł
CH-FC060K2 + PANEL T-MBQ4-02C Biały 3 500,00 zł
CH-FC085K2 + PANEL T-MBQ4-02C Biały 3 800,00 zł
CH-FC100K2 + PANEL T-MBQ4-02C Biały 4 000,00 zł
CH-FC120K2 + PANEL T-MBQ4-02C Biały 4 100,00 zł
CH-FC150K2 + PANEL T-MBQ4-02C Biały 4 300,00 zł
Dane techniczne
Model CH-FC030K2 CH-FC040K2 CH-FC50K2 CH-FC060K2 CH-FC085K2 CH-FC100K2 CH-FC120K2 CH-FC150K2
Panel T-MBQ4-03B1 T-MBQ4-03B1 T-MBQ4-03B1 T-MBQ4-02C T-MBQ4-02C T-MBQ4-02C T-MBQ4-02C T-MBQ4-02C
Przepływ powietrza wysoki/średni/niski m3/h 510/440/360 680/580/480 850/730/600 1000/850/720 1400/1190/1010 1600/1360/1150 2000/1700/1440 2550/2170/1840
Chłodzenie
Wydajność wysoka/średnia/niska kW 3.0/2.8/2.6 3.7/3.4/3.1 4.5/4.1/3.8 5.7/4.7/3.9 7.3/6.5/5.7 8.2/7.4/6.5 10.4/9.3/8.2 12.9/11.5/10.2
Przepływ wody l/h 522 642 774 984 1248 1416 1788 2214
Spadek ciśnienia wody kPa 14 15 16 23.8 27.0 31.2 44.0 40.0
Grzanie
Wydajność wysoka/średnia/niska kW 4.0/3.5/3.2 5.1/4.4/4.0 6.0/5.16/4.7 9.7/7.7/6.3 12.4/9.9/8.1 13.9/11.1/9.0 17.6/14.1/11.4 17.6/14.1/11.4
Spadek ciśnienia wody kPa 14 15 16 16.4 14.6 14.8 34.7 36.7
Zasilanie V ~Hz/faza 230V ~50Hz/1 faza 230V ~50Hz/1 faza 230V ~50Hz/1 faza 230V ~50Hz/1 faza 230V ~50Hz/1 faza 230V ~50Hz/1 faza 230V ~50Hz/1 faza 230V ~50Hz/1 faza
Pobór mocy W 35 60 75 125 150 155 190 190
Poziom ciśnienia wysoki/średni/niski dB(A) 36/32/27 42/38/33 45/41/36 45/41/36 47/43/38 48/44/39 49/45/40 50/46/41
Wymiennik
Ilość rzędów 2 2 2 2 2 2 2 3
Maksymalne ciśnienie robocze MPa 1.6 1.6 1.6 1.6 1.6 1.6 1.6 1.6
Panel
Wymiary (szer. x wys. x głęb.) mm 715x123x715 715x123x715 715x123x715 950x45x950 950x45x950 950x45x950 950x45x950 950x45x950
Masa kg 3 3 3 6.0 6.0 6.0 6.0 6.0
Przyłącza
Przyłącza wodne wlot/wylot cal RC3/4 RC3/4 RC3/4 RC3/4 RC3/4 RC3/4 RC3/4 RC3/4
Odwodnienie mm Ø32 Ø32 Ø32 Ø32 Ø32 Ø32 Ø32 Ø32
Wymiary
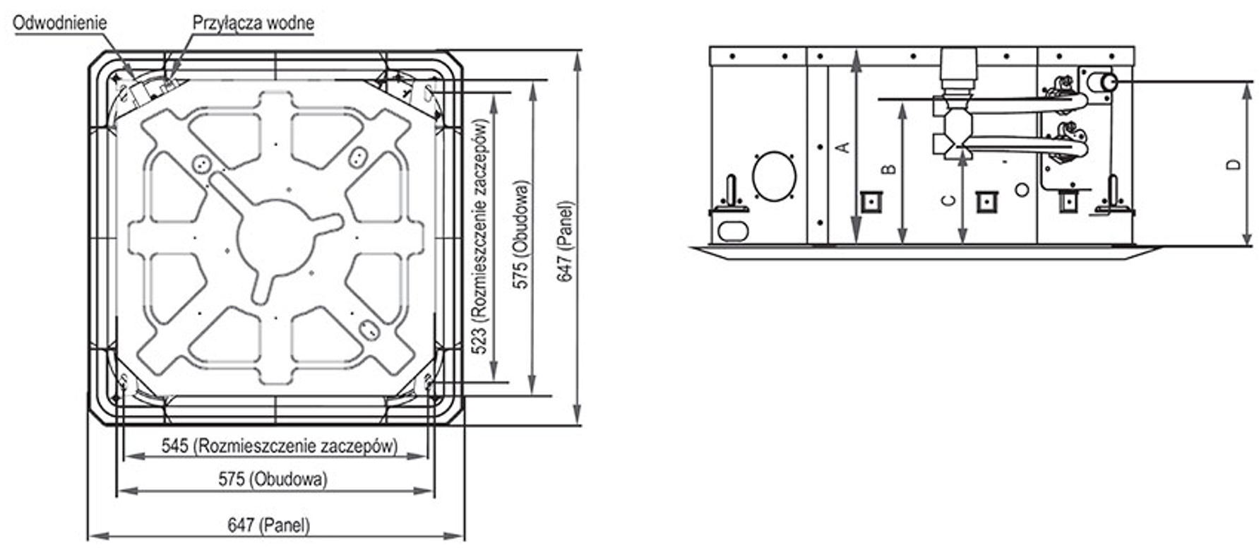
Wymiary - Kasetonowe
Model A B C D
CH-FC030K2 261 190 124 213
CH-FC040K2 261 190 124 213
CH-FC050K2 261 190 124 213
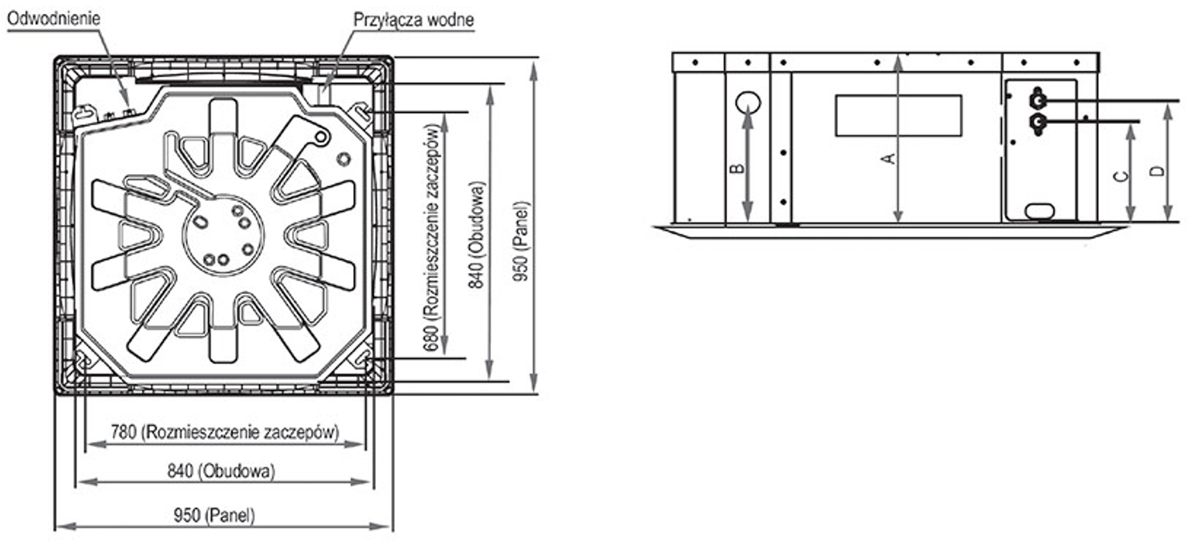
Wymiary - Kasetonowe
Model A B C D
CH-FC060K2 230 170 135 185
CH-FC085K2 300 190 145 195
CH-FC100K2 300 190 145 195
CH-FC120K2 300 190 145 195
CH-FC150K2 300 190 145 195
Pliki do pobrania
Karta gwarancyjna
Tylko dla zalogowanych do Strefy Instalatora
Protokół reklamacyjny
Tylko dla zalogowanych do Strefy Instalatora
Instrukcje serwisowe
Tylko dla zalogowanych do Strefy Instalatora
Video

Rekomendowane akcesoria

Produkty z tej samej kategorii

Nawet 5 lat gwarancji!
Nawet 5 lat gwarancji

W urządzeniach marki Cooper&Hunter zastosowano najnowsze rozwiązania techniczne sprawiające, że urządzenia są przyjazne środowisku, komfortowe, a przede wszystkim solidnie wykonane. Wysoka niezawodność urządzeń pozwala na udzielenie 5 lat gwarancji.

Gwarancja zapewniona jest na urządzenia marki Cooper&Hunter zakupione u autoryzowanego dystrybutora na terenie Rzeczpospolitej Polskiej.

Baza wiedzy
Popup image