Rekuperatory pionowe TKEC - Centrale wentylacyjne - Cooper & Hunter

Rekuperatory pionowe TKEC

EC wentylatory

Centrala wentylacyjna z odzyskiem ciepła służy do wentylacji mieszkań, biur i innych pomieszczeń. Jest to łatwy w montażu system, który pozwala na odzyskanie do 95% energii zużywanej do ogrzewania lub chłodzenia pomieszczeń.

Top Ported, kompaktowa konstrukcja
4 tryby pracy
Możliwość nawiewu z lewej lub z prawej strony
Struktura wewnętrzna EPP
Wymiennik przeciwprądowy, z możliwością mycia
Sprawność odzysku ciepła do 95%
Wentylatory EC
Automatyczny By-pass
Możliwość sterowania przewodowego lub bezprzewodowego
Typ lewy lub prawy opcjonalny do instalacji
Poznaj cechy i funkcje
Łatwa konserwacja

Konstrukcja urządzenia ułatwiająca czyszczenie i serwis.

Kompaktowa konstrukcja

Urządzenie o niewielkich wymiarach ułatwiających transport i montaż.

Regulowany spręż

Jednostka z możliwością regulacji sprężu dyspozycyjnego wentylatora.

Funkcja oszczędzania energii

Kiedy funkcja ta jest aktywna, ustawienia temperatury są dostępne w ograniczonym zakresie, by oszczędzać energię

Tryb Turbo

Funkcja szybkiego chłodzenia lub ogrzewania.

Tryb cichej pracy

Możliwość pracy urządzenia z obniżonym poziomem ciśnienia akustycznego.

Kilka prędkości wentylatora

Możliwość regulowania biegów wentylatora oraz intensywności nawiewu powietrza.

Tryb Auto

Tryb automatycznej pracy urządzenia.

Doprowadzenie świeżego powietrza

Możliwość doprowadzenie świeżego powietrza zewnętrznego

Auto restart

Uruchomienie urządzenia z zapamiętanymi nastawami po zaniku zasilania.

Autodiagnoza

Automatyczne wykrywanie usterek oraz komunikowanie błędów odpowiednimi kodami. 

Start przy obniżonym napięciu

Bezpieczne uruchomienie urządzenia przy obniżonym napięciu zasilania.

Zabezpieczenia pracy

Urządzenie wyposażone w funkcje i technologie gwarantujące niezawodność działania oraz zabezpieczające podzespoły.

Grzałka szczytowa (Opcja)

Możliwość sterowania opcjonalną zewnętrzną grzałką elektryczną szczytową.

Inteligentny system odszraniania

Automatyczne i inteligentne odszranianie urządzenia przez odwrócenie obiegu.

Sterowanie centralne

Możliwość centralnego sterowania wieloma urządzeniami ze sterownika naściennego.

Integracja BMS (Opcja)

Możliwość opcjonalnego zdalnego kontrolowania pracy i sterowania urządzeniem.

Cennik
Nazwa wariantu Kolor Cena (Netto)
CH-HRV2.5TKEC - Na zapytanie
CH-HRV3.5TKEC - Na zapytanie
CH-HRV5TKEC - Na zapytanie
Dane techniczne
Model CH-HRV2.5TKEC CH-HRV3.5TKEC CH-HRV5TKEC
Przepływ powietrza m3/h 250 350 500
Entalpia
Grzanie % 70 70 69
Chłodzenie % 63 63 66
Odzysk temperatury przy znam. przepływie % 85 85 85
Maksymalny odzysk temperatury % 95 95 95
Poziom ciśnienia akustycznego dB(A) 35 37 39
Spręż Pa 130 150 160
Zasilanie V/Hz/F 230V/50Hz 230V/50Hz 230V/50Hz
Pobór mocy W 170 320 480
Pobór prądu A 1.5 2.4 3.2
Klasa energetyczna / A A A
Przewód zasilający mm2 2x1.5 mm2 2x1.5 mm2 2x1.5 mm2
Przewód komunikacyjny mm2 2x0.5 mm2 2x0.5 mm2 2x0.5 mm2
Waga netto kg 40 40 50
Wymiary [szer. x wys. x dł.] mm 595x480x975 595x480x975 655x625x1085
Króćce przyłączeniowe mm 160 160 200
Zakres pracy
Standardowy °C -10 to 40 -10 to 40 -10 to 40
Z dodatkową grzałką °C -20 to 40 -20 to 40 -20 to 40
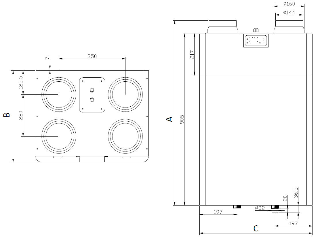
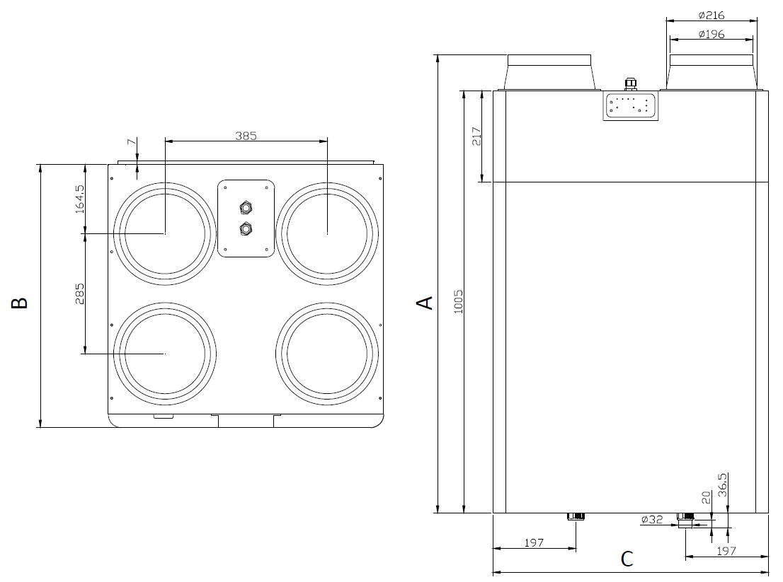
Wymiary
Wymiary - Rekuperatory pionowe TKEC
Model A B C
CH-HRV2.5TKEC 975 480 595
CH-HRV3.5TKEC 975 480 595
Wymiary - Rekuperatory pionowe TKEC
Model A B C
CH-HRV5TKEC 1085 624.5 655
Pliki do pobrania
Karta gwarancyjna
Tylko dla zalogowanych do Strefy Instalatora
Protokół reklamacyjny
Tylko dla zalogowanych do Strefy Instalatora
Video

Produkty z tej samej kategorii

Nawet 5 lat gwarancji!
Nawet 5 lat gwarancji

W urządzeniach marki Cooper&Hunter zastosowano najnowsze rozwiązania techniczne sprawiające, że urządzenia są przyjazne środowisku, komfortowe, a przede wszystkim solidnie wykonane. Wysoka niezawodność urządzeń pozwala na udzielenie 5 lat gwarancji.

Gwarancja zapewniona jest na urządzenia marki Cooper&Hunter zakupione u autoryzowanego dystrybutora na terenie Rzeczpospolitej Polskiej.

Baza wiedzy
Popup image