Rekuperatory KDC - króćce prostokątne - Centrale... - Cooper & Hunter

Rekuperatory KDC - króćce prostokątne

Silniki DC króćce prostokątne przeciwprądowy wymiennik ciepła

Centrale wentylacyjne serii KDC z prostokątnymi króćcami to urządzenia dedykowane do wentylacji domów, biur i lokali komercyjnych. Rekuperatory występują w dużych wydajnościach od 1500 do 2000 m3/h i dzięki wydajnemu wymiennikowi przeciwprądowemu umożliwiają odzysk ciepła na poziomie 75% (temperaturowo). Urządzenia są ponadto łatwe w montażu i oferują wygodne sterowanie standardowym sterownikiem naściennym. Posiada on między innymi funkcje przypomnienia o czyszczeniu filtra i regulator czasowy tygodniowy. Użytkownik ma możliwość wielostopniowej regulacji biegu wentylatorów. Centralę można także doposażyć w czujnik CO2 lub wilgotności powietrza oraz moduł WiFi. Płyta sterująca jest ponadto wyposażona w gniazda sygnałów usterki, pracy oraz wejście ON/OFF.

Przeciwprądowy wymiennik ciepła o wysokiej efektywności
Króćce prostokątne
Wydajności od 1500 do 2000 m3/h
Funkcja „by-pass”, ominięcie wymiennika w zależności od parametrów powietrza
Możliwość regulacji prędkości wentylatora: 10 stopni
Wymiennik celulozowy o wysokiej sprawności i niskich oporach
Wyciszona konstrukcja obudowy
Standardowy sterownik naścienny
Możliwość opcjonalnego sterowania za pomocą nowoczesnego dotykowego sterownika naściennego
Możliwość doposażenia w czujnik CO2 lub wilgotności powietrza
Poznaj cechy i funkcje
Łatwa konserwacja

Konstrukcja urządzenia ułatwiająca czyszczenie i serwis.

Kompaktowa konstrukcja

Urządzenie o niewielkich wymiarach ułatwiających transport i montaż.

Regulowany spręż

Jednostka z możliwością regulacji sprężu dyspozycyjnego wentylatora.

Przeciwprądowy wymiennik ciepła

Urządzenie z przeciwprądowym wymiennikiem ciepła.

Protokątne króćce

Urządzenie z prostokątnymi króćcami przyłączeniowymi.

Tryb cichej pracy

Możliwość pracy urządzenia z obniżonym poziomem ciśnienia akustycznego.

Kilka prędkości wentylatora

Możliwość regulowania biegów wentylatora oraz intensywności nawiewu powietrza.

Tryb Auto

Tryb automatycznej pracy urządzenia.

Czujnik CO2 (opcja)

Możliwość doposażenia w opcjonalny czujnik CO2.

Czujnik wilgotności (opcja)

Możliwość doposażenia w opcjonalny czujnik wilgotności powietrza.

Funkcja Bypass

Możliwość uruchomienia obejścia przepływu powietrza (bypass).

Autodiagnoza

Automatyczne wykrywanie usterek oraz komunikowanie błędów odpowiednimi kodami. 

Zabezpieczenia pracy

Urządzenie wyposażone w funkcje i technologie gwarantujące niezawodność działania oraz zabezpieczające podzespoły.

Start przy obniżonym napięciu

Bezpieczne uruchomienie urządzenia przy obniżonym napięciu zasilania.

Inteligentny system odszraniania

Automatyczne i inteligentne odszranianie urządzenia przez odwrócenie obiegu.

Timer 24

Możliwość zaprogramowania pracy urządzenia (ON/OFF) w zakresie doby.

Timer tygodniowy

Możliwość zaprogramowania pracy urządzenia (ON/OFF) indywidualnie na każdy dzień tygodnia.

Blokada sterownika

Możliwość blokady klawiatury sterownika (pilota).

Sterowanie WiFi (Opcja)

Możliwość opcjonalnego zdalnego sterowania urządzeniem z poziomu smartfona.

Sygnał usterki

Urządzenie z sygnałem wyjściowym informującym o usterce urządzenia.

Sterowanie sterownikiem naściennym

Urządzenie w standardzie wyposażone w przewodowy kontroler naścienny

Wentylatory DC

Urządzenie wyposażone w wentylatory DC.

Cennik
Nazwa wariantu Kolor Cena (Netto)
CH-HRV15KDC - 19 900,00 zł
CH-HRV20KDC - 24 900,00 zł
Dane techniczne
Model CH-HRV15KDC CH-HRV20KDC
Przepływ powietrza m3/h 1500 2000
Entalpia
Grzanie % 71 71
Chłodzenie % 65 65
Odzysk temperatury % 75 75
Poziom ciśnienia akustycznego db(A) 38 38
Wymiennik Przeciwprądowy Przeciwprądowy
Spręż Pa 75 60
Zasilanie F/V/Hz 220V/50Hz/1f 220V/50Hz/1f
Pobór mocy nominalny W 580 610
Przewód zasilający mm2 2x1.5 mm2 2x1.5 mm2
Przewód komunikacyjny mm2 2x0.5 mm2 2x0.5 mm2
Sterownik standardowy TAK (7-dniowy zegar) TAK (7-dniowy zegar)
Sterownik dotykowy Opcja Opcja
BMS Modbus NIE NIE
Typ wentylatora DC DC
Ilość biegów wentylatora 10 10
Wi-fi Opcjonalnie Opcjonalnie
Bypass TAK (automatyczne z regulowanym zakresem) TAK (automatyczne z regulowanym zakresem)
Odszranianie TAK (automatyczne z regulowanym zakresem) TAK (automatyczne z regulowanym zakresem)
Kontrola poziomu CO2 Opcjonalnie Opcjonalnie
Czujnik wilgotności Opcjonalnie Opcjonalnie
Zabezpieczenie przeciwpożarowe TAK (1 wyjście kontaktowe) TAK (1 wyjście kontaktowe)
Waga netto kg 165 189
Wymiary (szer. x wys. x dł.) mm 1322x785x884 1322x785x1134
Króćce przyłączeniowe mm 280x650 280x650
Filtr mm G3 SP-190x760x6 G3 SP-190x1010x6
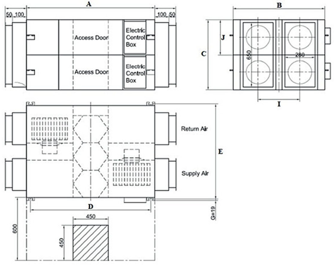
Wymiary
Wymiary - Rekuperatory KDC - króćce prostokątne
Model A B C D E Króciec I J
CH-HRV15KDC 1322 884 785 1250 940 280x650 428 170
CH-HRV20KDC 1322 1134 785 1250 1190 280x650 678 170
Pliki do pobrania
Video

Rekomendowane akcesoria

Produkty z tej samej kategorii

Nawet 5 lat gwarancji!
Nawet 5 lat gwarancji

W urządzeniach marki Cooper&Hunter zastosowano najnowsze rozwiązania techniczne sprawiające, że urządzenia są przyjazne środowisku, komfortowe, a przede wszystkim solidnie wykonane. Wysoka niezawodność urządzeń pozwala na udzielenie 5 lat gwarancji.

Gwarancja zapewniona jest na urządzenia marki Cooper&Hunter zakupione u autoryzowanego dystrybutora na terenie Rzeczpospolitej Polskiej.

Baza wiedzy
Popup image