Rekuperatory KDC2 - króćce okrągłe - Nowość -... - Cooper & Hunter

Rekuperatory KDC2 - króćce okrągłe - Nowość

Silniki DC króćce okrągłe entalpiczny wymiennik ciepła

Centrale wentylacyjne serii KDC2 z okrągłymi króćcami to nowe urządzenia dedykowane do wentylacji mieszkań, domów i niewielkich biur. Rekuperatory występują w wydajnościach od 150 do 2000 m3/h i dzięki wydajnemu wymiennikowi entalpicznemu umożliwiają odzysk ciepła na poziomie nawet 87%. Urządzenia są ponadto łatwe w montażu i oferują wygodne sterowanie nowoczesnym i estetycznym sterownikiem naściennym oferującym między innymi integrację Modbus oraz timer tygodniowy. Rekuperator wyposażony jest w filtry powietrza G3. Urządzenie oferuje ponadto możliwość zmiany lokalizacji króćców świeżego i nawiewanego powietrza. Dodatkowo dostępny jest jako opcja bezprzewodowy moduł monitorowania jakości powietrza Wireless Indoor Air Quality Monitoring. Urządzenie może w czasie rzeczywistym wykrywać dane dotyczące jakości powietrza, w tym temperaturę, wilgotność, poziom CO₂ oraz stężenie PM2.5.
 

Entalpiczny wymiennik ciepła o wysokiej efektywności
Króćce okrągłe
Wydajności od 150 do 2000 m3/h
Funkcja „by-pass”, ominięcie wymiennika w zależności od parametrów powietrza
Możliwość regulacji prędkości wentylatora: 10 stopni
Możliwość zmiany miejsca króćców powietrza świeżego i nawiewanego
Nowoczesny sterownik naścienny
Możliwość opcjonalnego doposażenia w moduł jakości powietrza
Poznaj cechy i funkcje
Łatwa konserwacja

Konstrukcja urządzenia ułatwiająca czyszczenie i serwis.

Kompaktowa konstrukcja

Urządzenie o niewielkich wymiarach ułatwiających transport i montaż.

Regulowany spręż

Jednostka z możliwością regulacji sprężu dyspozycyjnego wentylatora.

Tryb cichej pracy

Możliwość pracy urządzenia z obniżonym poziomem ciśnienia akustycznego.

Kilka prędkości wentylatora

Możliwość regulowania biegów wentylatora oraz intensywności nawiewu powietrza.

Czujnik CO2 (opcja)

Możliwość doposażenia w opcjonalny czujnik CO2.

Czujnik wilgotności (opcja)

Możliwość doposażenia w opcjonalny czujnik wilgotności powietrza.

Funkcja Bypass

Możliwość uruchomienia obejścia przepływu powietrza (bypass).

Autodiagnoza

Automatyczne wykrywanie usterek oraz komunikowanie błędów odpowiednimi kodami. 

Zabezpieczenia pracy

Urządzenie wyposażone w funkcje i technologie gwarantujące niezawodność działania oraz zabezpieczające podzespoły.

Start przy obniżonym napięciu

Bezpieczne uruchomienie urządzenia przy obniżonym napięciu zasilania.

Timer tygodniowy

Możliwość zaprogramowania pracy urządzenia (ON/OFF) indywidualnie na każdy dzień tygodnia.

Blokada sterownika

Możliwość blokady klawiatury sterownika (pilota).

Integracja BMS (Opcja)

Możliwość opcjonalnego zdalnego kontrolowania pracy i sterowania urządzeniem.

Sterowanie WiFi (Opcja)

Możliwość opcjonalnego zdalnego sterowania urządzeniem z poziomu smartfona.

Sygnał usterki

Urządzenie z sygnałem wyjściowym informującym o usterce urządzenia.

Sterowanie sterownikiem naściennym

Urządzenie w standardzie wyposażone w przewodowy kontroler naścienny

Wentylatory DC

Urządzenie wyposażone w wentylatory DC.

Cennik
Nazwa wariantu Kolor Cena (Netto)
CH-HRV1.5KDC2 - 6 500,00 zł
CH-HRV2.5KDC2 - 6 950,00 zł
CH-HRV3.5KDC2 - 7 500,00 zł
CH-HRV5KDC2 - 9 190,00 zł
CH-HRV6.5KDC2 - 10 290,00 zł
CH-HRV8KDC2 - 11 490,00 zł
CH-HRV10KDC2 - 12 690,00 zł
CH-HRV15KDC2 - 22 990,00 zł
CH-HRV20KDC2 - 25 600,00 zł
Dane techniczne
Model CH-HRV1.5KDC2 CH-HRV2.5KDC2 CH-HRV3.5KDC2 CH-HRV5KDC2 CH-HRV6.5KDC2 CH-HRV8KDC2 CH-HRV10KDC2 CH-HRV15KDC2 CH-HRV20KDC2
Przepływ powietrza m3/h 150 250 350 500 650 800 1000 1500 2000
Entalpia
Grzanie % 73-79 70-83 72-84 69-83 69-82 71-82 73-87 72-82 73-87
Chłodzenie % 71-79 68-83 71-82 67-82 66-81 70-81 71-86 71-81 71-86
Odzysk temperatury % 80-84 79-86 80-89 78-87 77-86 79-85 80-90 80-85 80-90
Poziom ciśnienia akustycznego db(A) 29 28 32 34 35 35 37 39 40
Wymiennik
Spręż Pa 95 85 160 120 120 150 170 175 150
Zasilanie F/V/Hz 220V/50Hz/1F 220V/50Hz/1F 220V/50Hz/1F 220V/50Hz/1F 220V/50Hz/1F 220V/50Hz/1F 220V/50Hz/1F 220V/50Hz/1F 220V/50Hz/1F
Pobór mocy nominalny W 58 62 140 165 252 335 420 670 850
Przewód zasilający mm2 3x1.5 mm2 3x1.5 mm2 3x1.5 mm2 3x1.5 mm2 3x1.5 mm2 3x1.5 mm2 3x1.5 mm2 3x1.5 mm2 3x1.5 mm2
Przewód komunikacyjny mm2 4x0.5 mm2 4x0.5 mm2 4x0.5 mm2 4x0.5 mm2 4x0.5 mm2 4x0.5 mm2 4x0.5 mm2 4x0.5 mm2 4x0.5 mm2
Sterownik standardowy TAK (7-dniowy zegar) TAK (7-dniowy zegar) TAK (7-dniowy zegar) TAK (7-dniowy zegar) TAK (7-dniowy zegar) TAK (7-dniowy zegar) TAK (7-dniowy zegar) TAK (7-dniowy zegar) TAK (7-dniowy zegar)
Opcjonalny moduł jakości powietrza Opcja Opcja Opcja Opcja Opcja Opcja Opcja Opcja Opcja
BMS Modbus TAK TAK TAK TAK TAK NIE NIE NIE NIE
Typ wentylator DC Inverter DC Inverter DC Inverter DC Inverter DC Inverter DC Inverter DC Inverter DC Inverter DC Inverter
Ilość biegów wentylatora 10 10 10 10 10 10 10 10 10
Wi-fi Opcjonalnie Opcjonalnie Opcjonalnie Opcjonalnie Opcjonalnie Opcjonalnie Opcjonalnie Opcjonalnie Opcjonalnie
Bypass TAK (automatyczne z regulowanym zakresem) TAK (automatyczne z regulowanym zakresem) TAK (automatyczne z regulowanym zakresem) TAK (automatyczne z regulowanym zakresem) TAK (automatyczne z regulowanym zakresem) TAK (automatyczne z regulowanym zakresem) TAK (automatyczne z regulowanym zakresem) TAK (automatyczne z regulowanym zakresem) TAK (automatyczne z regulowanym zakresem)
Odszranianie TAK (automatyczne z regulowanym zakresem) TAK (automatyczne z regulowanym zakresem) TAK (automatyczne z regulowanym zakresem) TAK (automatyczne z regulowanym zakresem) TAK (automatyczne z regulowanym zakresem) TAK (automatyczne z regulowanym zakresem) TAK (automatyczne z regulowanym zakresem) TAK (automatyczne z regulowanym zakresem) TAK (automatyczne z regulowanym zakresem)
Kontrola poziomu CO2 Opcjonalnie Opcjonalnie Opcjonalnie Opcjonalnie Opcjonalnie Opcjonalnie Opcjonalnie Opcjonalnie Opcjonalnie
Czujnik wilgotności Opcjonalnie Opcjonalnie Opcjonalnie Opcjonalnie Opcjonalnie Opcjonalnie Opcjonalnie Opcjonalnie Opcjonalnie
Zabezpieczenie przeciwpożarowe TAK (1 wyjście kontaktowe) TAK (1 wyjście kontaktowe) TAK (1 wyjście kontaktowe) TAK (1 wyjście kontaktowe) TAK (1 wyjście kontaktowe) TAK (1 wyjście kontaktowe) TAK (1 wyjście kontaktowe) TAK (1 wyjście kontaktowe) TAK (1 wyjście kontaktowe)
Waga netto kg 20 23 30 33 38 48 54 98 112
Wymiary (szer. x wys. x dł.) mm 780x289x610 780x289x735 884x331x874 884x331x1016 908x404x954 1144x404x1004 1144x404x1231 1144x808x1004 1144x808x1231
Króćce przyłączeniowe mm 100 150 150 200 200 250 250 - -
Filtr mm - - - - - - - - -
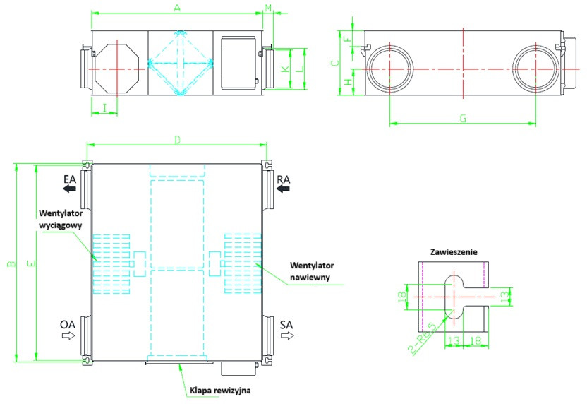
Wymiary
Wymiary - Rekuperatory KDC2 - króćce okrągłe - Nowość
Model A B C D E F G H I K L M
CH-HRV1.5KDC2 780 610 289 819 549 78 450 95 116 95 110 53
CH-HRV2.5KDC2 780 735 289 819 719 78 526 95 116 144 160 58
CH-HRV3.5KDC2 884 874 331 922 958 81 650 135 132 144 160 58
CH-HRV5KDC2 884 1016 331 922 1000 81 750 135 132 195 211 61
CH-HRV6.5KDC2 908 954 404 946.5 935 71 692 202 123 195 211 61
CH-HRV8KDC2 1144 1004 404 1182 986 82 690 162 164 244 261 62
CH-HRV10KDC2 1144 1231 404 1182 1213 82 917 162 164 244 261 62
Wymiary - Rekuperatory KDC2 - króćce okrągłe - Nowość
Model A B C D E F G H I
CH-HRV15KDC2 1144 1004 808 1182 986 82 404 690 108
CH-HRV20KDC2 1144 1231 808 1182 1213 82 404 917 108
Pliki do pobrania
Karta gwarancyjna
Tylko dla zalogowanych do Strefy Instalatora
Protokół reklamacyjny
Tylko dla zalogowanych do Strefy Instalatora
Video

Rekomendowane akcesoria

Produkty z tej samej kategorii

Nawet 5 lat gwarancji!
Nawet 5 lat gwarancji

W urządzeniach marki Cooper&Hunter zastosowano najnowsze rozwiązania techniczne sprawiające, że urządzenia są przyjazne środowisku, komfortowe, a przede wszystkim solidnie wykonane. Wysoka niezawodność urządzeń pozwala na udzielenie 5 lat gwarancji.

Gwarancja zapewniona jest na urządzenia marki Cooper&Hunter zakupione u autoryzowanego dystrybutora na terenie Rzeczpospolitej Polskiej.

Baza wiedzy
Popup image