Rekuperatory KDC - króćce okrągłe - Centrale... - Cooper & Hunter

Rekuperatory KDC - króćce okrągłe

Silniki DC króćce okrągłe przeciwprądowy wymiennik ciepła

Centrale wentylacyjne serii KDC z okrągłymi króćcami to urządzenia dedykowane do wentylacji mieszkań, domów i niewielkich biur. Rekuperatory występują w wydajnościach od 150 do 1000 m3/h i dzięki wydajnemu wymiennikowi przeciwprądowemu umożliwiają odzysk ciepła na poziomie 75% (temperaturowo). Urządzenia są ponadto łatwe w montażu i oferują wygodne sterowanie standardowym sterownikiem naściennym. Posiada on między innymi funkcje przypomnienia o czyszczeniu filtra i regulator czasowy tygodniowy. Użytkownik ma możliwość wielostopniowej regulacji biegu wentylatorów. Centralę można także doposażyć w czujnik CO2 lub wilgotności powietrza oraz moduł WiFi. Płyta sterująca jest ponadto wyposażona w gniazda sygnałów usterki, pracy oraz wejście ON/OFF, a także gniazdo komunikacyjne RS485 (do wydajności 6.5).

Przeciwprądowy wymiennik ciepła o wysokiej efektywności
Króćce okrągłe
Wydajności od 150 do 1000 m3/h
Funkcja „by-pass”, ominięcie wymiennika w zależności od parametrów powietrza
Możliwość regulacji prędkości wentylatora: 10 stopni
Wymiennik celulozowy o wysokiej sprawności i niskich oporach
Wyciszona konstrukcja obudowy
Standardowy sterownik naścienny
Możliwość opcjonalnego sterowania za pomocą nowoczesnego dotykowego sterownika naściennego
Możliwość doposażenia w czujnik CO2 lub wilgotności powietrza
Poznaj cechy i funkcje
Łatwa konserwacja

Konstrukcja urządzenia ułatwiająca czyszczenie i serwis.

Kompaktowa konstrukcja

Urządzenie o niewielkich wymiarach ułatwiających transport i montaż.

Regulowany spręż

Jednostka z możliwością regulacji sprężu dyspozycyjnego wentylatora.

Przeciwprądowy wymiennik ciepła

Urządzenie z przeciwprądowym wymiennikiem ciepła.

Okrągłe króćce

Urządzenie z okrągłymi króćcami przyłączeniowymi.

Tryb cichej pracy

Możliwość pracy urządzenia z obniżonym poziomem ciśnienia akustycznego.

Kilka prędkości wentylatora

Możliwość regulowania biegów wentylatora oraz intensywności nawiewu powietrza.

Tryb Auto

Tryb automatycznej pracy urządzenia.

Czujnik CO2 (opcja)

Możliwość doposażenia w opcjonalny czujnik CO2.

Czujnik wilgotności (opcja)

Możliwość doposażenia w opcjonalny czujnik wilgotności powietrza.

Funkcja Bypass

Możliwość uruchomienia obejścia przepływu powietrza (bypass).

Autodiagnoza

Automatyczne wykrywanie usterek oraz komunikowanie błędów odpowiednimi kodami. 

Zabezpieczenia pracy

Urządzenie wyposażone w funkcje i technologie gwarantujące niezawodność działania oraz zabezpieczające podzespoły.

Start przy obniżonym napięciu

Bezpieczne uruchomienie urządzenia przy obniżonym napięciu zasilania.

Inteligentny system odszraniania

Automatyczne i inteligentne odszranianie urządzenia przez odwrócenie obiegu.

Timer 24

Możliwość zaprogramowania pracy urządzenia (ON/OFF) w zakresie doby.

Timer tygodniowy

Możliwość zaprogramowania pracy urządzenia (ON/OFF) indywidualnie na każdy dzień tygodnia.

Blokada sterownika

Możliwość blokady klawiatury sterownika (pilota).

Integracja BMS (Opcja)

Możliwość opcjonalnego zdalnego kontrolowania pracy i sterowania urządzeniem.

Sterowanie WiFi (Opcja)

Możliwość opcjonalnego zdalnego sterowania urządzeniem z poziomu smartfona.

Sygnał usterki

Urządzenie z sygnałem wyjściowym informującym o usterce urządzenia.

Sterowanie sterownikiem naściennym

Urządzenie w standardzie wyposażone w przewodowy kontroler naścienny

Wentylatory DC

Urządzenie wyposażone w wentylatory DC.

Cennik
Nazwa wariantu Kolor Cena (Netto)
CH-HRV1.5KDC - 6 400,00 zł
CH-HRV2.5KDC - 6 850,00 zł
CH-HRV3.5KDC - 7 350,00 zł
CH-HRV5KDC - 8 300,00 zł
CH-HRV6.5KDC - 9 650,00 zł
CH-HRV8KDC - 10 700,00 zł
CH-HRV10KDC - 11 900,00 zł
Dane techniczne
Model CH-HRV1.5KDC CH-HRV2.5KDC CH-HRV3.5KDC CH-HRV5KDC CH-HRV6.5KDC CH-HRV8KDC CH-HRV10KDC
Przepływ powietrza m3/h 150 250 350 500 650 800 1000
Entalpia
Grzanie % 70 70 69 67 68 71 71
Chłodzenie % 63 63 66 62 62 65 65
Odzysk temperatury % 75 75 75 75 75 75 75
Poziom ciśnienia akustycznego db(A) 23 24 28 30 32 35 35
Wymiennik
Spręż Pa 75 85 90 100 70 120 85
Zasilanie F/V/Hz 220V/50Hz/1F 220V/50Hz/1F 220V/50Hz/1F 220V/50Hz/1F 220V/50Hz/1F 220V/50Hz/1F 220V/50Hz/1F
Pobór mocy nominalny W 51 81 112 143 205 290 305
Przewód zasilający mm2 2x1.5 mm2 2x1.5 mm2 2x1.5 mm2 2x1.5 mm2 2x1.5 mm2 2x1.5 mm2 2x1.5 mm2
Przewód komunikacyjny mm2 2x0.5 mm2 2x0.5 mm2 2x0.5 mm2 2x0.5 mm2 2x0.5 mm2 2x0.5 mm2 2x0.5 mm2
Sterownik standardowy TAK (7-dniowy zegar) TAK (7-dniowy zegar) TAK (7-dniowy zegar) TAK (7-dniowy zegar) TAK (7-dniowy zegar) TAK (7-dniowy zegar) TAK (7-dniowy zegar)
Sterownik dotykowy TAK (7-dniowy zegar) TAK (7-dniowy zegar) TAK (7-dniowy zegar) TAK (7-dniowy zegar) TAK (7-dniowy zegar) TAK (7-dniowy zegar) TAK (7-dniowy zegar)
BMS Modbus TAK TAK TAK TAK TAK NIE NIE
Typ wentylator DC Inverter DC Inverter DC Inverter DC Inverter DC Inverter DC Inverter DC Inverter
Ilość biegów wentylatora 10 10 10 10 10 10 10
Wi-fi Opcjonalnie Opcjonalnie Opcjonalnie Opcjonalnie Opcjonalnie Opcjonalnie Opcjonalnie
Bypass TAK (automatyczne z regulowanym zakresem) TAK (automatyczne z regulowanym zakresem) TAK (automatyczne z regulowanym zakresem) TAK (automatyczne z regulowanym zakresem) TAK (automatyczne z regulowanym zakresem) TAK (automatyczne z regulowanym zakresem) TAK (automatyczne z regulowanym zakresem)
Odszranianie TAK (automatyczne z regulowanym zakresem) TAK (automatyczne z regulowanym zakresem) TAK (automatyczne z regulowanym zakresem) TAK (automatyczne z regulowanym zakresem) TAK (automatyczne z regulowanym zakresem) TAK (automatyczne z regulowanym zakresem) TAK (automatyczne z regulowanym zakresem)
Kontrola poziomu CO2 Opcjonalnie Opcjonalnie Opcjonalnie Opcjonalnie Opcjonalnie Opcjonalnie Opcjonalnie
Czujnik wilgotności Opcjonalnie Opcjonalnie Opcjonalnie Opcjonalnie Opcjonalnie Opcjonalnie Opcjonalnie
Zabezpieczenie przeciwpożarowe TAK (1 wyjście kontaktowe) TAK (1 wyjście kontaktowe) TAK (1 wyjście kontaktowe) TAK (1 wyjście kontaktowe) TAK (1 wyjście kontaktowe) TAK (1 wyjście kontaktowe) TAK (1 wyjście kontaktowe)
Waga netto kg 25 29 37 43 64 71 83
Wymiary (szer. x wys. x dł.) mm 808x264x580 882x270x599 882x270x804 962x270x904 1222x340x884 1322x388x884 1322x388x1134
Króćce przyłączeniowe mm 150 150 150 200 200 250 250
Filtr mm SP-180x446x6 SP-180x446x6 SP-180x670x6 SP-180x770x6 SP-168x760x6 SP-190x760x6 SP-190x1010x6
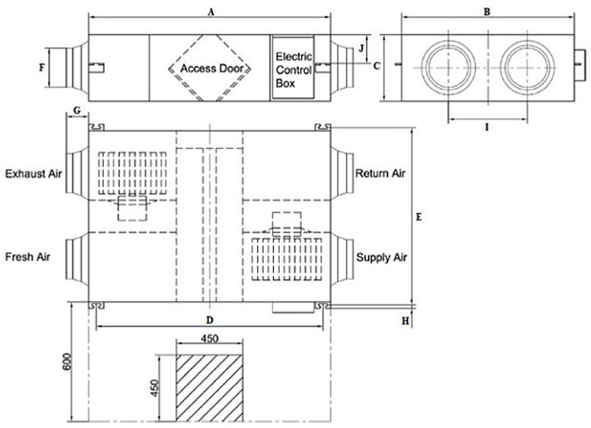
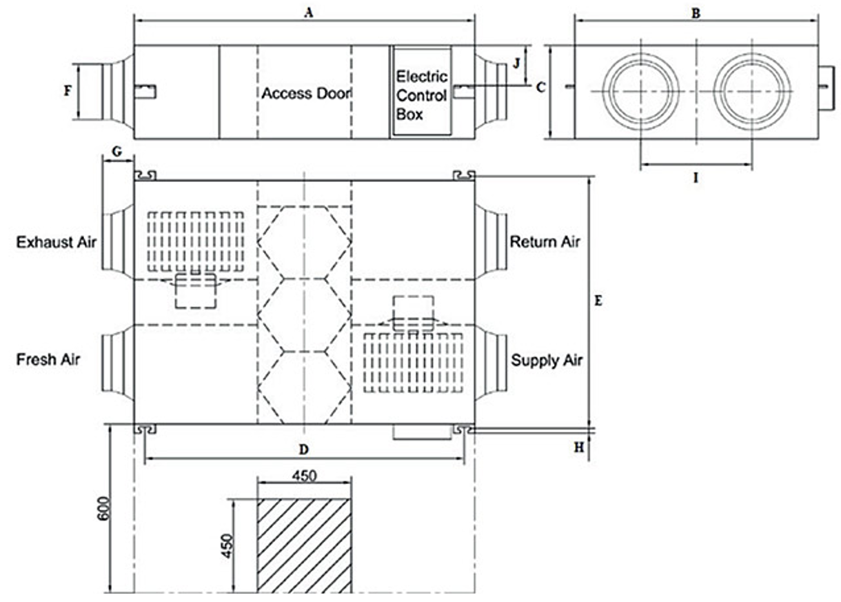
Wymiary
Wymiary - Rekuperatory KDC - króćce okrągłe
Model A B C D E F G H I J
CH-HRV1.5KDC 808 580 264 867 510 Φ 150 100 19 290 20
CH-HRV2.5KDC 882 599 270 810 657 Φ 150 100 19 315 111
CH-HRV3.5KDC 882 804 270 810 860 Φ 150 100 19 480 111
CH-HRV5KDC 962 904 270 890 960 Φ 200 107 19 500 111
Wymiary - Rekuperatory KDC - króćce okrągłe
Model A B C D E F G H I J
CH-HRV6.5KDC 1222 884 340 1150 940 Φ 200 107 19 480 146
CH-HRV8KDC 1322 884 388 1250 940 Φ 250 85 19 428 170
CH-HRV10KDC 1322 1134 388 1250 1190 Φ 250 85 19 678 170
Pliki do pobrania
Video

Rekomendowane akcesoria

Produkty z tej samej kategorii

Nawet 5 lat gwarancji!
Nawet 5 lat gwarancji

W urządzeniach marki Cooper&Hunter zastosowano najnowsze rozwiązania techniczne sprawiające, że urządzenia są przyjazne środowisku, komfortowe, a przede wszystkim solidnie wykonane. Wysoka niezawodność urządzeń pozwala na udzielenie 5 lat gwarancji.

Gwarancja zapewniona jest na urządzenia marki Cooper&Hunter zakupione u autoryzowanego dystrybutora na terenie Rzeczpospolitej Polskiej.

Baza wiedzy
Popup image